Blog&column
ブログ・コラム

【宇治市】テナント募集物件の情報|株式会社イエローハウジング

query_builder 2020/10/19
ブログ
小倉町山際テナント_R

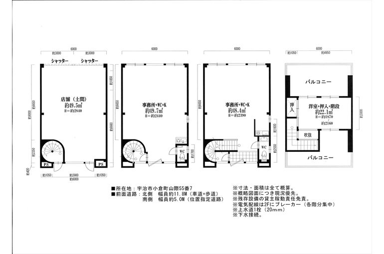
事務所や店舗用の物件をお探しの方に新情報です。

近鉄『小倉駅』より徒歩9分、三階建てのフロア貸しで、駐車場2区画・最大4台駐車可能です。

内装工事自由にしていただけます。

詳細は当社までお気軽にどうぞ。

NEW

  • 宇治市|月極バイク・自転車駐輪場情報

    query_builder 2022/03/22
  • 【伏見区】近鉄『伏見駅』から徒歩9分の物件情報をお届けします。

    query_builder 2022/01/17
  • 宇治市|伊勢田駅から4分・東南角地の土地物件情報|株式会社イエローハウジング

    query_builder 2022/01/17
  • 宇治市で物件情報をご提供|株式会社イエローハウジング

    query_builder 2021/10/10
  • JR山崎駅から徒歩4分の土地情報をお知らせ致します。

    query_builder 2021/09/28

CATEGORY

ARCHIVE