宇治市小倉町テナント募集のお知らせ | コラム | 京都府宇治市 伊勢田駅【株式会社 イエローハウジング】
トップページ
コンセプト
特集
よくある質問
新着情報
ブログ・コラム
アクセス
売却について
買取について
用語集
お問い合わせ
サイトマップ
ホームページ
Blog&column
ブログ・コラム
宇治で不動産の売買のことなら株式会社イエローハウジングにお任せください
ブログ・コラム
ブログ
宇治市小倉町テナント募集のお知らせ
宇治市小倉町テナント募集のお知らせ
query_builder
2020/12/01
ブログ
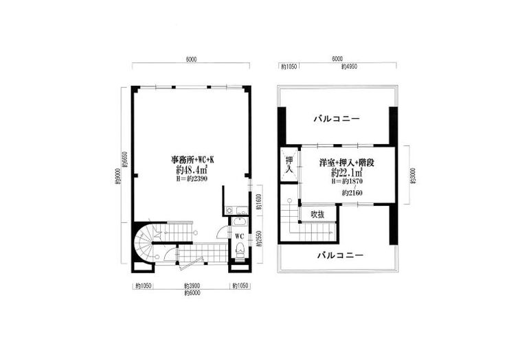
テナント3階(約48㎡)+4階(約22㎡)で賃料50,000円/月
4階には両面バルコニーもあります。
改装工事等自由にしていただけます。
お問い合わせは株式会社イエローハウジングまでどうぞ。
一覧に戻る
NEW
宇治市|月極バイク・自転車駐輪場情報
query_builder
2022/03/22
【伏見区】近鉄『伏見駅』から徒歩9分の
物件
情報をお届けします。
query_builder
2022/01/17
宇治市|伊勢田駅から4分・東南角地の
土地
物件
情報|株式会社イエローハウジング
query_builder
2022/01/17
宇治市で
物件
情報をご提供|株式会社イエローハウジング
query_builder
2021/10/10
JR山崎駅から徒歩4分の
土地
情報をお知らせ致します。
query_builder
2021/09/28
CATEGORY
ブログ・コラム
ブログ
コラム
ARCHIVE
2022年3月
1
2022年2月
1
2022年1月
3
2021年12月
1
2021年11月
1
2021年10月
2
2021年9月
2
2021年8月
5
2021年7月
2
2021年6月
4
2021年5月
4
2021年4月
2